Eladó családi ház Budapest XXII. ker 143 000 000 Ft

Leírás

BELSŐ KÉTSZINTES IKERHÁZ, KIVÁLÓ KÖZLEKEDÉSSEL!

Szereti a pazar minőséget,a nagy tereket,a modern stílust?

Olyan kertes házra vágyik,melynek párja nincs a környéken és csak a bőröndöt kell begurítania?
Akkor ne keressen tovább Megtalálta!

A kivitelező törekedett arra,hogy magas minőségű,egyedi kivitelezésű ingatlant alkosson ezen a nem mindennapi környéken!

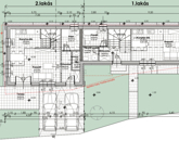
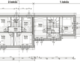
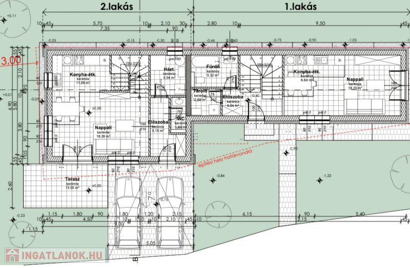
A ház nettó alapterülete 75 nm + 26 nm-es terasszal!
A nettó 88 nm-es ikerház 149,9M Ft!

Az Ön dolga „csupán” a színek, burkolatok kiválasztása, hogy a munkálatok végeztével valóban otthon érezhesse magát!

A ház – csakúgy, mint a kivitelező számtalan, megtekinthető referencia háza esetében is – magas minőségi anyagok felhasználásával és magas műszaki tartalommal épül.

Mindannyian tudjuk,hogy az otthon nemcsak négy falat,tárgyakat jelent,az otthon menedék.Az az ember ,akinek van hová-és van kihez hazamenni,mindenkor könnyebben viseli az élet konfliktusait,csapásait,feladatait.Az otthon számomra azt is jelenti,hogy valaki meghallgat,valaki velem van!

Meglátni és megszeretni ezzel tudnám jellemezni ezt a jó hangulatú nappali+2 hálószobás körbenapozott, teraszos,gépészeti helyiség, tároló kialakítású iker házat!

Fontos, hogy az ingatlanvásárlás hosszú távon is értékálló befektetés legyen!

A házat ajánljuk családosoknak, hiszen itt minden az Állam adta kedvezményt, lehetőséget kihasználhatnak, legyen az Babaváró, CSOK támogatás és hitel is!

Miért ne venné igénybe az Állam adta támogatásokat, lehetőségeket? Döntsön okosan, használja ki amíg lehet!

Alapozás:
- Vasalt sávalap (föld alatt) Statikai terv szerint

Zsalukő magasítás (föld felett)

Vasalt szerelőbeton készítés / Síkháló vasalással

Szigetelés:
Felmenő falak és a padlók alá GV3,5 bitumenes nehézlemez

Padlásfödémek felső síkjára 15+15 cm Rockwool, vagy knauf ( táblás )

Külső szigetelés 15 cm dryvit ragasztóval.

10 cm xps szigetelés a lábazatra

160 g dryvit hálóval, fém dübellel

Külső nemes vakolat Henkel Ceresit fehér
Falazat:
30 - as ( porotherm 30 )

10 –-es válaszfalazat ( porotherm, leier)
Födém:
gipszkarton álmennyezet :

hőtükrös fólia
vizes helyiségekben impregnált zöld karton

Szinterezett alumínium csatorna rendszerrel

Nyílászárók :
Műanyag Nyílászáró 3 rétegű üveggel, kívül színezett, belül fehér

Belső ajtók:
Utólag szerelhető belső ajtó,

45.000 Ft / db
Villanyszerelés:
1,5 mm réz vezeték falban csövekben szerelve

2,5 mm réz vezeték a nagyobb teljesítményű gépekhez

Legrand Valena Life szerelvénnyel a házra 50 db.

Komplett riasztó rendszer alap rendszer kiépítés.

Lámpatestek nincsenek benne az árban.
Ha kell 2800 Ft/db áron felszereljük

Vízszerelés :
5 rétegű műanyag vízvezeték cső, Pextherm prés idomokkal

Lefolyó csövek PVC illetve KG-PVC

mosdó 30.000 Ft / 1 db bruttó

Kádtöltő csaptelep 30.000 Ft db bruttó

Mosdó csaptelep 50.000 Ft / db bruttó

Zuhany csaptelep 30.000 Ft / db.

Padlóba építhető lefolyó lejtés képzéssel. 80.000 Ft-ig bruttó

Geberit vagy viega Wc tartály fali 2db 90.000 Ft / db bruttó

Wc mély öblítésű 2db 40.000 Ft / db bruttó

törölközőszárítós radiátor 30.000 Ft bruttó

NGBS iCON 200 digitális szobatermosztát,

Vakolatok:
Hagyományos belső gépi vakolat , vakolaterősítő hálóval a beton és tégla találkozásoknál, fém vakolt élvédővel a sarkokban.

Külső színezés Henkel Ceresit vakolat

Külső burkolat:

Felső szint látványterv szerint burkolva

Festés:
Vakolt fal kétszeri glettelése , csiszolása kétszeri festéssel.

( Fehér színű HÉRA belső festék. )

Pasztell színek Héra, vagy polifarbe festékből

Burkolatok:
A hideg burkolatok 4500 Ft/ m2 magasság 210 cm-ig

A meleg burkolatok tartozékokkal 4500 Ft /m2 ( polinommal és szegély léccel)

Csatorna telken belül házra kötve..

A ház két oldalán , drótkerítés 150 cm magas

A bejárati ajtó előtt járda az utca frontig viacolor burkolat.

Ha ajánlatom felkeltette érdeklődését várom megtisztelő hívását!

Szép napot sikeres vásárlást kívánok!

Családi ház részletei

Ár: 143 000 000 Ft
Méret: 101 négyzetméter
Azonosító: 11614927
Telek: 267 négyzetméter
Ingatlan állapota: Kitűnő
Jelleg: ikerház
Építőanyag: Kérdezzen rá a hirdetőtől »
Szintek száma: 2 szint
Egész szobák: 4

Egyéb jellemzők

  • Csatorna
  • Garázs
  • Kábel TV
  • Melléképület
  • Parketta
  • Pince
  • Terasz